日高川町平川
物件番号:43271
価格:980万円
所在地:日高郡日高川町平川
交通情報:紀州鉄道和佐駅より約8.5㎞
川辺ICより約1.6㎞
| 土地面積 | 228.07㎡ (約68.99坪) |
|---|---|
| 他私道 | なし |
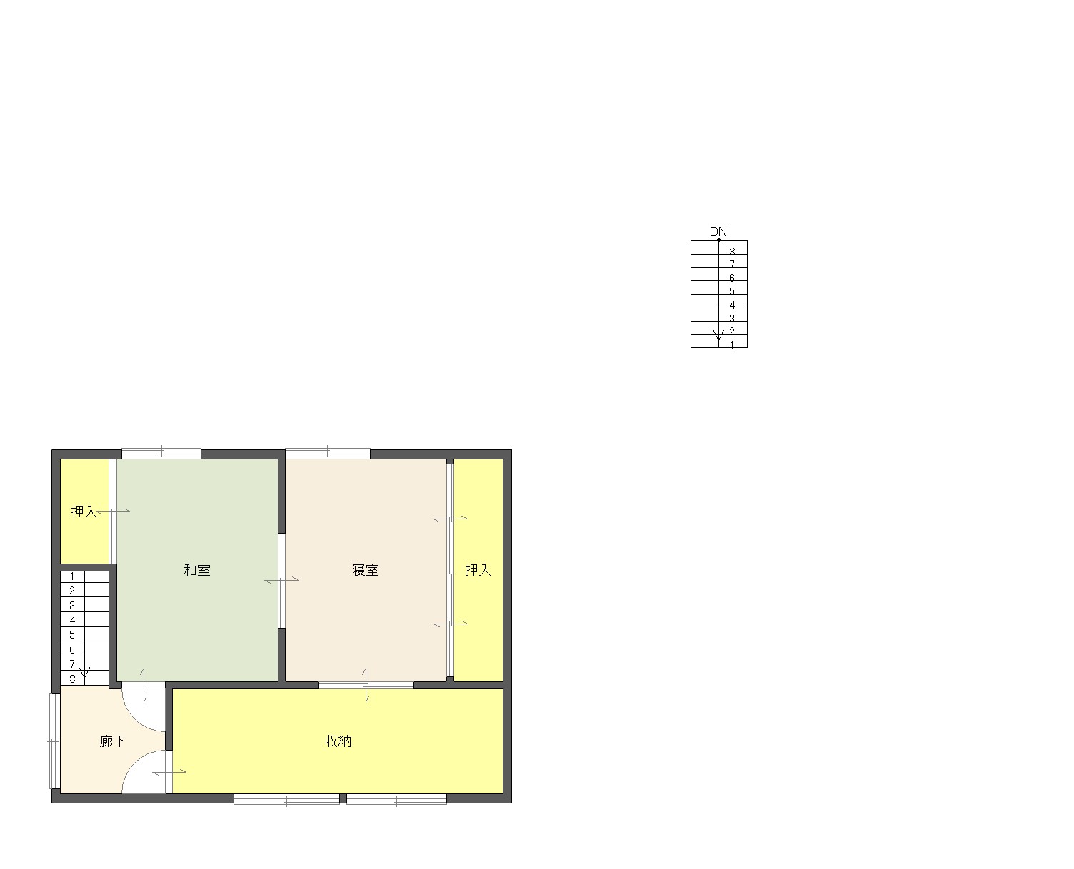
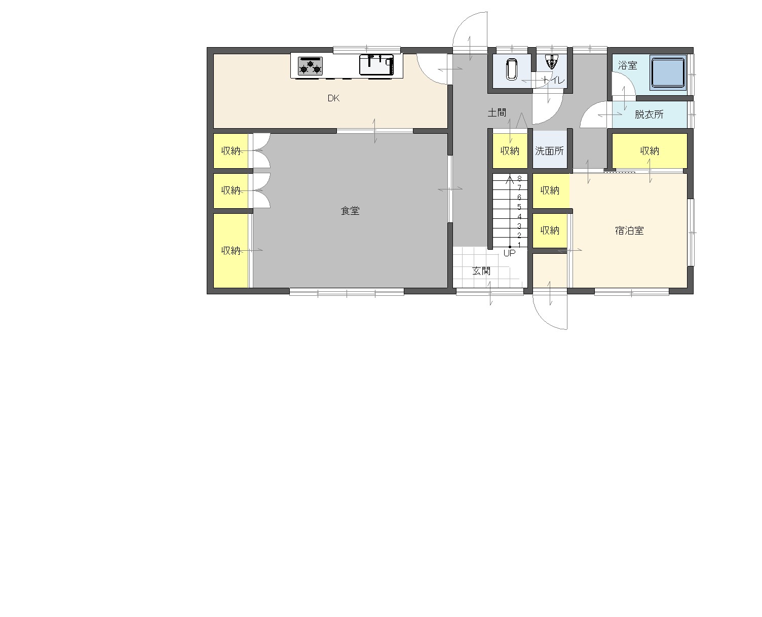
| 建物面積 | 1階 72.90㎡ 2階 49.00㎡ 延べ 121.90㎡ |
| 接道状況 | 南側幅員約15.3m公道に24.4m接道 |
| 土地権利 | 所有権 |
| 地目 | 宅地 |
| 地勢 | 平坦・ひな段 |
| 海抜 | 35.9m |
| 都市計画 | 区域外 |
| 用途地域 | ー |
| 容積率 | ー |
| 建ぺい率 | ー |
| 土砂災害警戒区域 | 区域内 |
| 津波災害警戒区域 | 区域外 |
| 築年月 | 1977年 |
| 構造 | 鉄骨造亜鉛メッキ銅板葦 |
| 現況 | 居住中 |
| 校区 | 中津小学校まで 約3.9㎞ 早蘇中学校まで 約2.7km |
| 駐車場 | 乗用車2台 |
| 引渡日 | 相談 |
| 取引態様 | 仲介(手数料:要) |
| 設備 | 電気・上水道・プロパン 個別浄化槽 |
| 備考 | 自然豊かな環境 ゲストハウス 残置物は要相談 |
自然豊かな場所でゲストハウス! 新しい土地で新生活を始めてみませんか♩




































